Консультации дизайнера интерьера от нашей компании — это ваш ключ к созданию гармоничного пространства, которое соответствует вашим желаниям, образу жизни и функциональным потребностям. Мы понимаем, что интерьер — это не просто набор красивой мебели или цветовых акцентов, а целостное пространство, которое создает настроение и комфорт. Наши дизайнеры помогают разработать концепцию интерьера, которая будет функциональной, эстетичной и уютной для вас. Каждая консультация дизайнера интерьера — это что-то особенное. Ее можно заказать также онлайн, что максимально удобно.
Грамотные консультации дизайнера интерьера
Наши услуги
— Фото и видеофиксация объекта
— Обмерный план
— Планировочные решения (3-4 варианта)
— Визуализации (3-4 шт. на помещение/зону)
— Все рабочие чертежи, необходимые для реализации проекта
— Таблица состава интерьера с ценами и ссылками на поставщиков
$40 м.кв
— Сопровождение проекта на всех этапах
— Технический надзор за качеством выполнения ремонтных работ
— Проверка соответствия работ проектной документации
— Коммуникация с подрядчиками
— Решение проблем, возникающих в процессе ремонта
— Подбор и замена элементов интерьера, отсутствующих в продаже
— Подбор и сверка образцов материалов на соответствие визуализациям и стилистической концепции
— Подбор мебели, предметов декора, декорирование
$20 м.кв
— Мониторинг цен на рынке, подбор наиболее выгодных предложений
— Поиск и подбор подрядчиков в соответствии с проектом
— Своевременная закупка материалов
— Контроль сроков доставки, их актуальности
— Организация разгрузки и подъема товаров на этаж
— Контроль качества и целостности груза
$20 м.кв
Структура работы
Мы выполняем всю работу от создания дизайн-проекта до реализации интерьера с полным декорированием жилого пространства (объекта). Вы получаете пространство, полностью готовое для проживания с эргономичной и уютной обстановкой.
Мы согласовываем с вами каждый этап дизайн-проекта, включая мебель, отделочные материалы, технику, сценарии освещения, наполнение шкафов и гардеробных, а также другие важные моменты.
Весь комплекс работ по созданию комфортного пространства, начиная с внедрения инженерных систем и заканчивая стилизацией вашего дома — абсолютно все берем на себя.
До 100 м² — 3 — 5 месяцев
100-300 м² — 5 — 8 месяцев
Больше 300 м² — от 8 месяцев
Планировочное решение
Начинаем работу с тщательного измерения и фотосъемки объекта нашими специалистами. Также организуем онлайн/офлайн встречу с клиентом для обсуждения и согласования технического задания.
Учитывая пожелания заказчика, определяем функциональное наполнение каждого помещения и зоны. Мы представляем 3-4 варианта планировки, которые можем комбинировать между собой, или же дорабатываем один из вариантов, чтобы он на 100% соответствовал потребностям заказчиков.
Стилевое решение
На этом этапе определяется основная концепция для реализации идей автора. Создается общая картина будущего интерьера, которая передает настроение, стиль и цветовую гамму. Для этого мы организуем поездки в салоны, проводим начальный выбор мебели и материалов, разрабатываем чертежи основных зон и подбираем цветовые решения.
Так формируется moodboard — коллаж-визуализация интерьера, который помогает понять, соответствует ли общий стиль пространства вашим ожиданиям и насколько дизайнер попал в цель. При необходимости вносим коррективы, чтобы будущий 3D-проект максимально точно передавал желаемое настроение помещения.
Визуализация
На этом этапе мы создаем трехмерную модель будущего пространства, чтобы вы могли получить фотореалистичные изображения с объемным отображением предметов и иметь полное представление о будущем интерьере.
Для этого дизайнер заранее подбирает и применяет конкретную мебель и материалы из актуальных коллекций производителей, которые впоследствии будут использованы непосредственно на объекте.


На этом этапе заказчик может внести любые корректировки: изменить цветовые решения, добавить декор или заменить отдельные элементы.
Для каждого проекта создается 3-4 визуализации каждой зоны, чтобы будущие владельцы могли увидеть каждый фрагмент своего интерьера.
Качественно выполненная 3D-визуализация интерьера необходима для достижения взаимопонимания между заказчиком и дизайнером, а также станет полезной при дальнейшей работе с подрядчиками и строителями для точной разработки чертежей, правильного подбора цветов, оттенков и технических деталей.

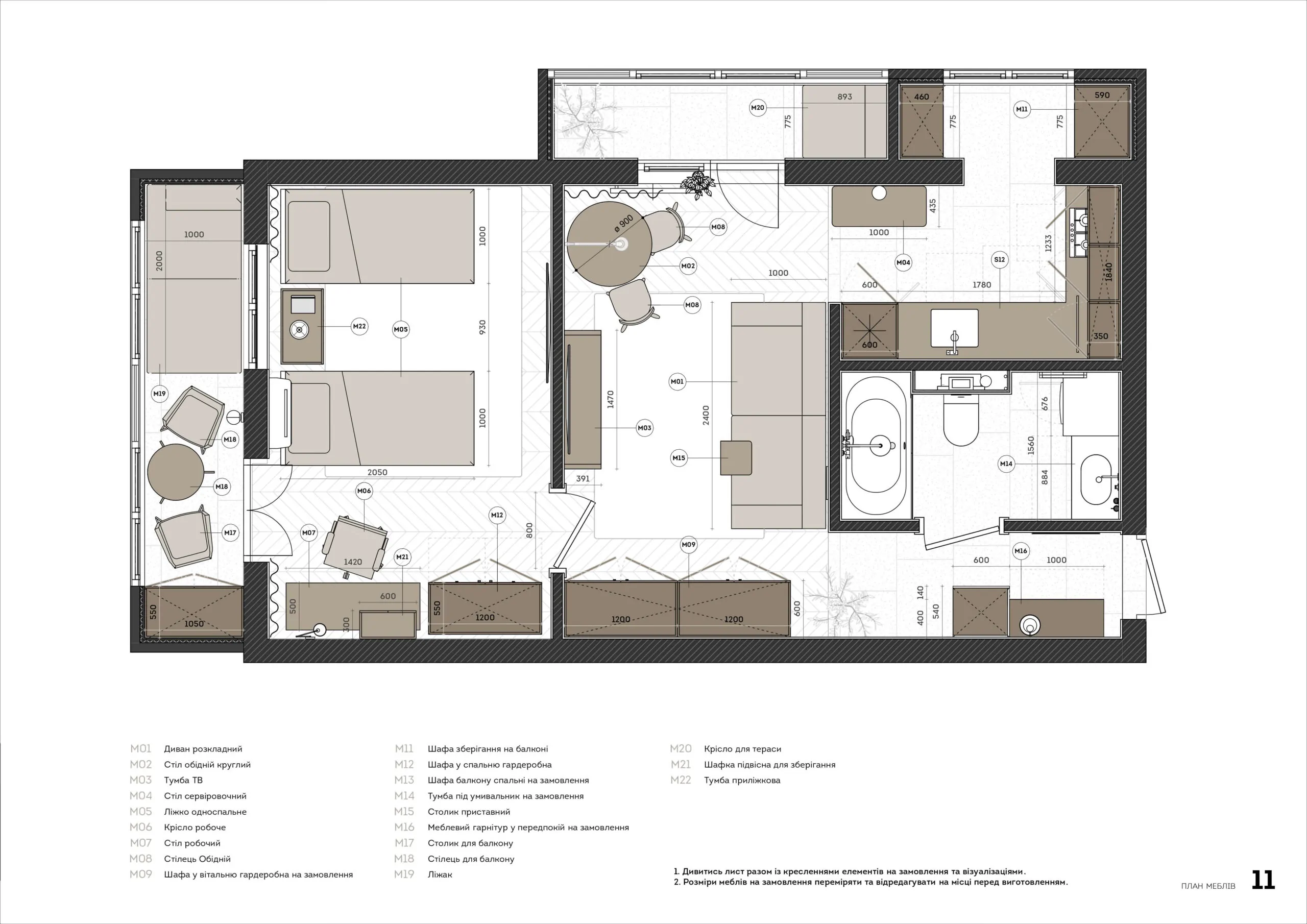
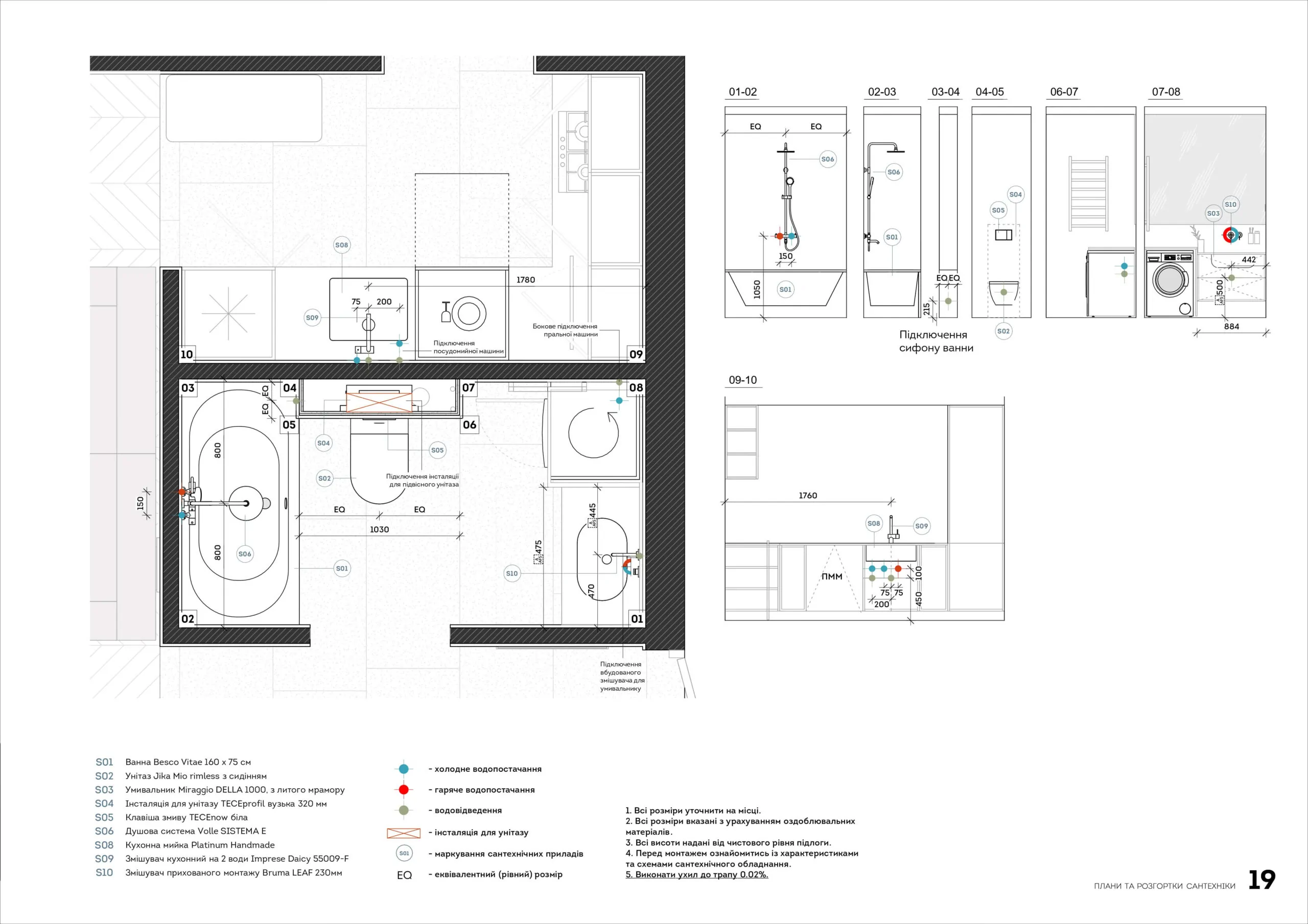
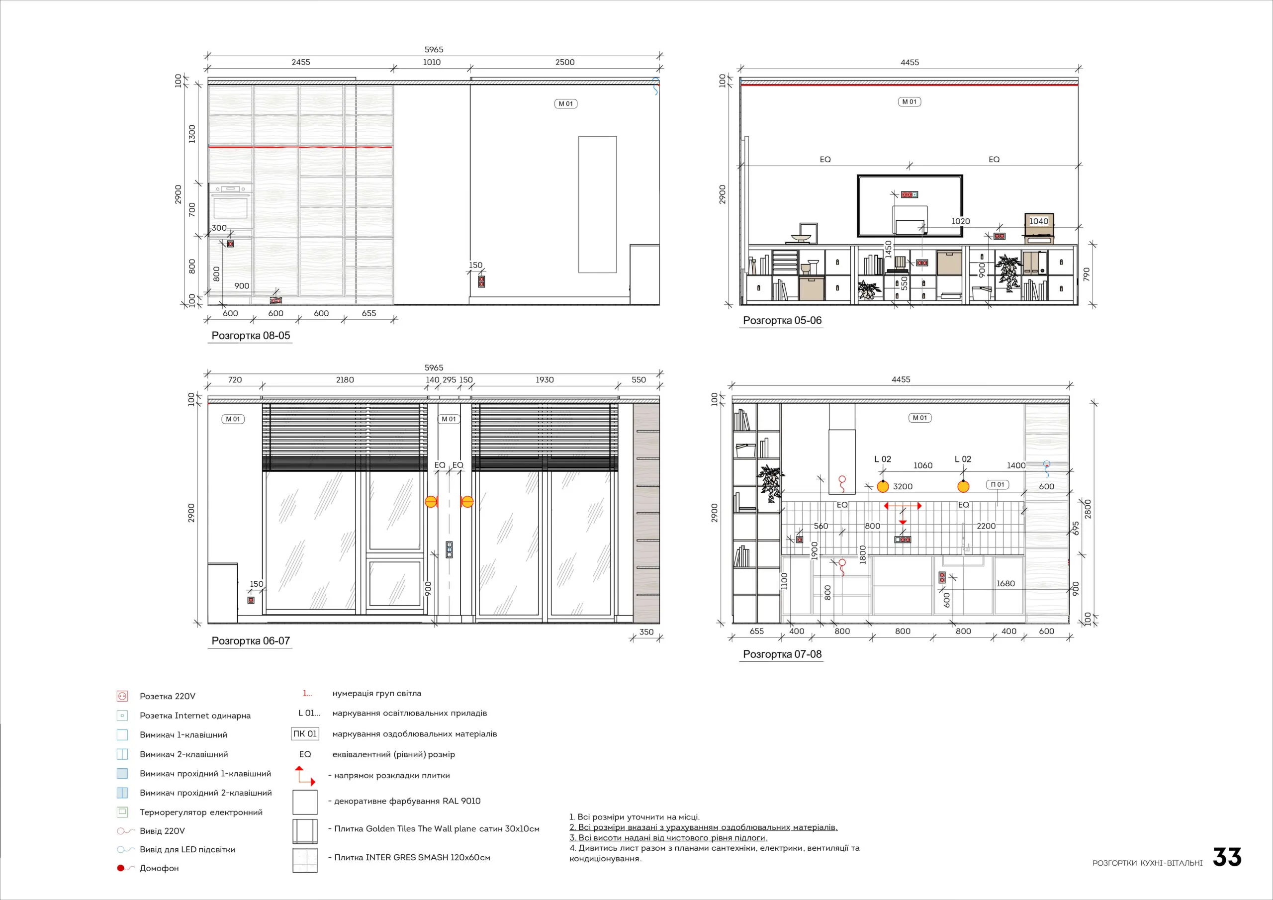
Рабочая документация
Чертежи позволяют точно определить размещение стен, мебели, техники и других элементов в интерьере, что помогает оптимально использовать доступное пространство.
Наличие безупречной документации с указанием точного объема отделочных материалов гарантирует успешный процесс работ на объекте. К проектированию мы привлекаем подрядчиков инженерных систем, кондиционирования, отопления, меблировки и т. д.
— Детализированный замерный план помещения
— Чертежи демонтажа старых и монтажа новых конструкций
— План и схемы расположения мебели и приборов в помещении
— План и схемы размещения и разводки сантехники
— Планы размещения электроприборов, выключателей, розеток
— Размещение и управление осветительными приборами
— Планы отделки стен, потолка, пола
— Список всех используемых материалов, мебели, светильников с указанием их количества, производителей и других характеристик.
Авторский надзор и управление проектом
Включает в себя комплекс услуг, необходимых для реализации дизайн-проекта, проведения качественных ремонтных работ, координации всех поставщиков и подрядчиков на объекте. А также — консультации строителей по проекту в процессе работы, корректировка рабочих чертежей при необходимости, регулярные выезды команды проекта на объект.
— Контроль дизайнера за реализацией проекта;
— В процессе строительства дизайнер корректирует чертежи для строителей и смежников, если происходят изменения, касающиеся проекта;
— Дизайнер всегда на связи, консультирует строителей и смежников по телефону и выезжает на объект;
— Подбор материалов, контроль их качества, соответствия 3D-визуализациям;
— Согласование счетов на оплату отделочных материалов и мебели;
— Ведение графика поставок отделочных материалов и мебели, согласование даты доставки с прорабом.
Часто задаваемые вопросы
Контроль реализации проекта необходим для того, чтобы вы получили максимально точный и успешный результат. В противном случае возникают множество трудностей: нарушение пропорций, невозможность реализации сложных узлов и полное несоответствие 3D-визуализации. Часто подрядчики и строители для удобства и упрощения работы говорят о невозможности точного выполнения проекта из-за чрезмерной сложности отдельных узлов. Однако мы всегда уверены в своих расчетах и знаем, что иногда оригинальные решения требуют немного более творческого подхода к их реализации. Только авторский надзор обеспечит 100% реализацию проекта в реальность. Также мы составляем график закупки материалов и оборудования, следим за поставками на строительство и бесперебойностью строительного процесса.
Закупка необходимых материалов, мебели и оборудования занимает много времени и требует значительных ресурсов. Нужно отправлять заявки в салоны, узнавать наличие конкретных позиций, подготовить счета на оплату, организовать доставку и проверить качество на соответствие. У нас есть проверенные поставщики, поэтому мы гарантируем оперативный процесс и берем на себя ответственность за качество и выгодные цены. В результате комплектация объекта обеспечивает лучший результат для реализации дизайн-проекта, а заказчик имеет возможность получить товары по эксклюзивным ценам и, в конечном итоге, хорошо сэкономить.
Конечно, это основное условие успешного сотрудничества. Всегда просим четко определить сумму, за пределы которой заказчик не готов выходить. Мы знаем, на чем реально можно сэкономить, а на чем категорически нельзя. От первого эскиза до приемки объекта контролируем соответствие бюджета заказчика.
Да, главное для идеального воплощения проекта — слаженные действия заказчика, архитектора и строителей. У нас есть своя опытная бригада, а также практика сотрудничества с бригадой заказчика. Все решается индивидуально.
Наша команда против такого подхода, так как только готовый проект дает гарантию точного расчета сметы на работы, материалы и сроки выполнения. Без проекта возникает множество рисков, связанных с простоем бригады и дополнительными расходами на неузаконенные виды работ. В таком случае сумма затрат может быть непредсказуемой.
Наличие проекта обеспечит максимальный контроль над бюджетом, сроками и конечным результатом, а за любые ошибки в расчетах будет нести ответственность строительная бригада или дизайн-студия.
Да, это вполне реально, главное — это попасть в жилье для снятия замеров. Вместе с вами мы определим стилистику, утвердим техническое задание, разработаем планировочное решение и перейдем к 3D-визуализации с чертежами. Это позволит сэкономить время на разработку и реализацию.
Мы мечтаем иметь способности, позволяющие вести разработку с такой скоростью, но в этом случае наши услуги стоили бы в десятки раз дороже, если бы работа выполнялась в такой короткий срок. Если заказчик спешит, мы всегда идем навстречу, но многое зависит от самого заказчика: насколько быстро он принимает решения, делает выбор, как часто выходит на связь и как четко формулирует свои запросы и пожелания.
В состав документации не включены специализированные инженерные проекты (расчет нагрузок конструкций, электропроект, проект систем кондиционирования и вентиляции и т.д.). При необходимости и по индивидуальному запросу заказчика их выполняют наши подрядчики. Основной пакет проекта включает планы размещения приборов, а вопросы прокладки коммуникаций решает подрядчик на месте, и обычно дополнительных инструкций не требуется.
Конечно, у нас есть опыт дистанционной разработки и реализации проектов. Мы предоставляем полный спектр услуг, который не требует непосредственного участия заказчика в ремонте, поэтому он может находиться в любой точке планеты.
Наша студия создает комплексные проекты для жизни, используя целостный подход к проектированию, поэтому, к сожалению, частичные услуги мы предоставить не можем.
Особенности наших консультаций
От понимания потребностей — к идеальному интерьеру. На начальном этапе мы детально обсуждаем с вами ваши предпочтения, образ жизни и функциональные потребности. Какой бы ни был ваш интерьер — от современного городского апартамента до уютного загородного дома — наш дизайнер поможет вам найти баланс между функциональностью и эстетикой. Мы ориентируемся на ваши пожелания, предлагая варианты зонирования, стиля, материалов и декора, которые наилучшим образом соответствуют вашему представлению об идеальном жилье.
Наши консультации включают анализ пространства, предложения по оптимальному зонированию, выбору стиля, цветовой гаммы и материалов. От того, как организовано пространство, зависит, насколько оно будет удобным и функциональным. Дизайнер предлагает оптимальные решения для каждого уголка вашего жилья: где лучше расположить зону отдыха, как обустроить кухню, как использовать площадь максимально эффективно, сохраняя при этом свободное пространство.
Освещение — один из важнейших элементов интерьера, и наш дизайнер поможет выбрать лучшие варианты, чтобы подчеркнуть атмосферу пространства. Мы предоставляем рекомендации по различным типам освещения — от общего до декоративного — и помогаем подобрать стильные светильники, которые станут акцентами в интерьере. Отделочные материалы также играют большую роль, и наши специалисты помогут вам выбрать текстуры и цвета, создающие уют и гармонию.
Важно, чтобы мебель не только гармонично смотрелась, но и была удобной и долговечной. На консультациях мы обсуждаем, какие элементы мебели и декора лучше всего впишутся в ваше пространство. Будь то классическая мебель или современные минималистичные предметы — мы дадим вам советы, где лучше разместить те или иные элементы, какие цвета и формы подчеркнут стиль вашего интерьера. Все услуги действительно качественные, так как наша ремонтно-строительная компания знает свое дело.
Почему стоит выбрать нас?
Чтобы разработка проекта была качественной, вы можете обратиться к нам. Среди причин заказать консультации у нас:
- Особый подход к каждому клиенту.
- Лучшие условия.
- Самые выгодные цены в Киеве.
Каждый интерьер имеет свою особенность, и наши дизайнеры предлагают решения, которые подчеркнут индивидуальность вашего пространства. Это могут быть необычные цветовые акценты, нестандартная мебель, уникальные предметы декора или другие детали, которые делают ваш интерьер по-настоящему «вашим». С нами вы создадите атмосферу, которая будет приносить радость каждый день и вдохновлять. Мы гарантируем высокое качество консультаций всегда.











